LOCATION:
De Soto, Wisconsin
CLIENT:
Private
SIZE:
1,920 GSF
PROGRAM:
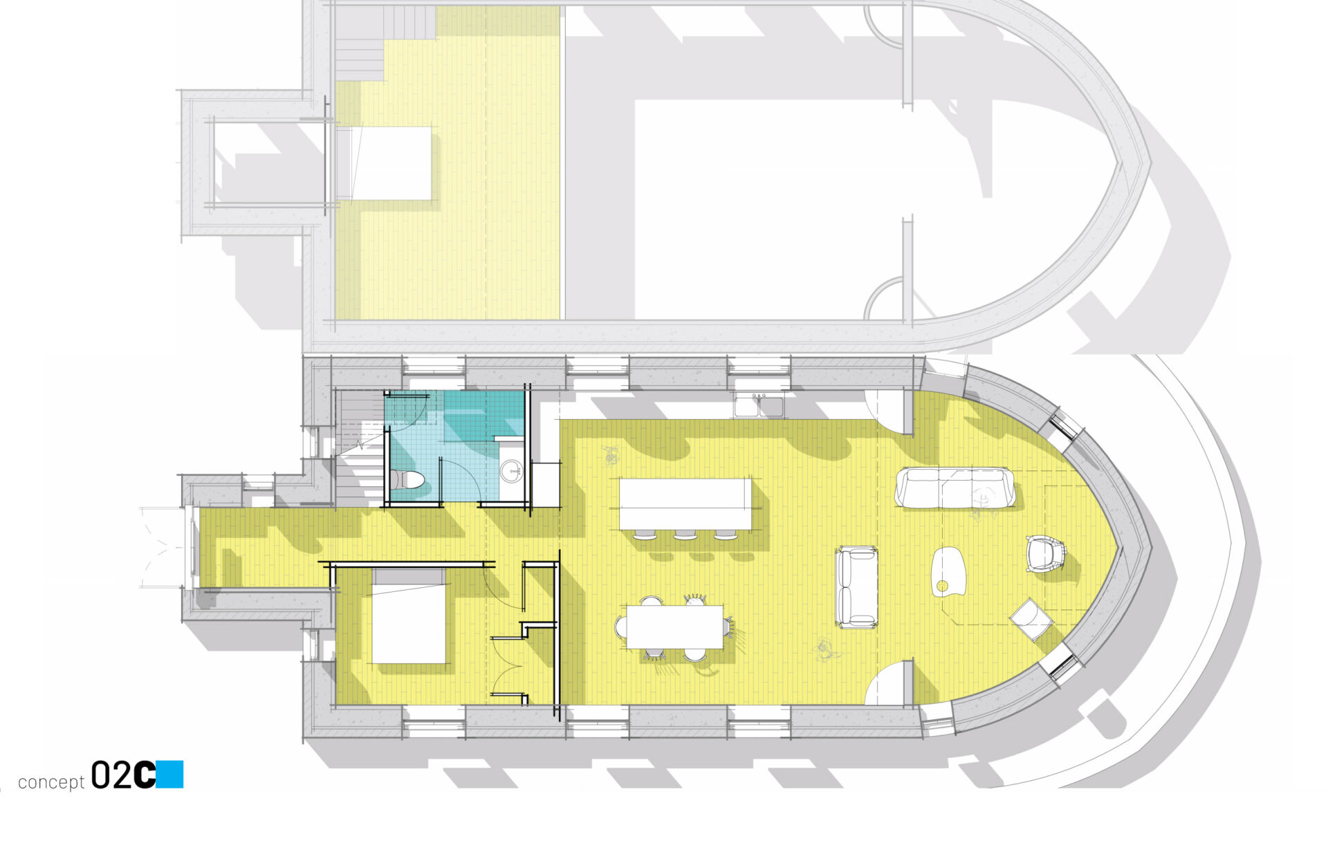
Foyer, Kitchen, Living, Dining, Sleeping, Bathing, Loft, Support
TIMELINE:
Design 2024-2025
Construction 2025-2026
ROLE:
Project Architect
RECOGNITION:
–

De Soto, Wisconsin
Private
1,920 GSF
Foyer, Kitchen, Living, Dining, Sleeping, Bathing, Loft, Support
Design 2024-2025
Construction 2025-2026
Project Architect
–